• PROJEKTE
  • LEISTUNGEN
  • Wir
  • Kontakt
  • AGB

LUCIAN GREZZA CREATIONS

PRODUKTDESIGN / INNENARCHITEKTUR / 3D-VISUALS & GRAFIK

  • PROJEKTE
  • LEISTUNGEN
  • Wir
  • Kontakt
  • AGB

PARFUEMERIE SCHNEIDER

DE
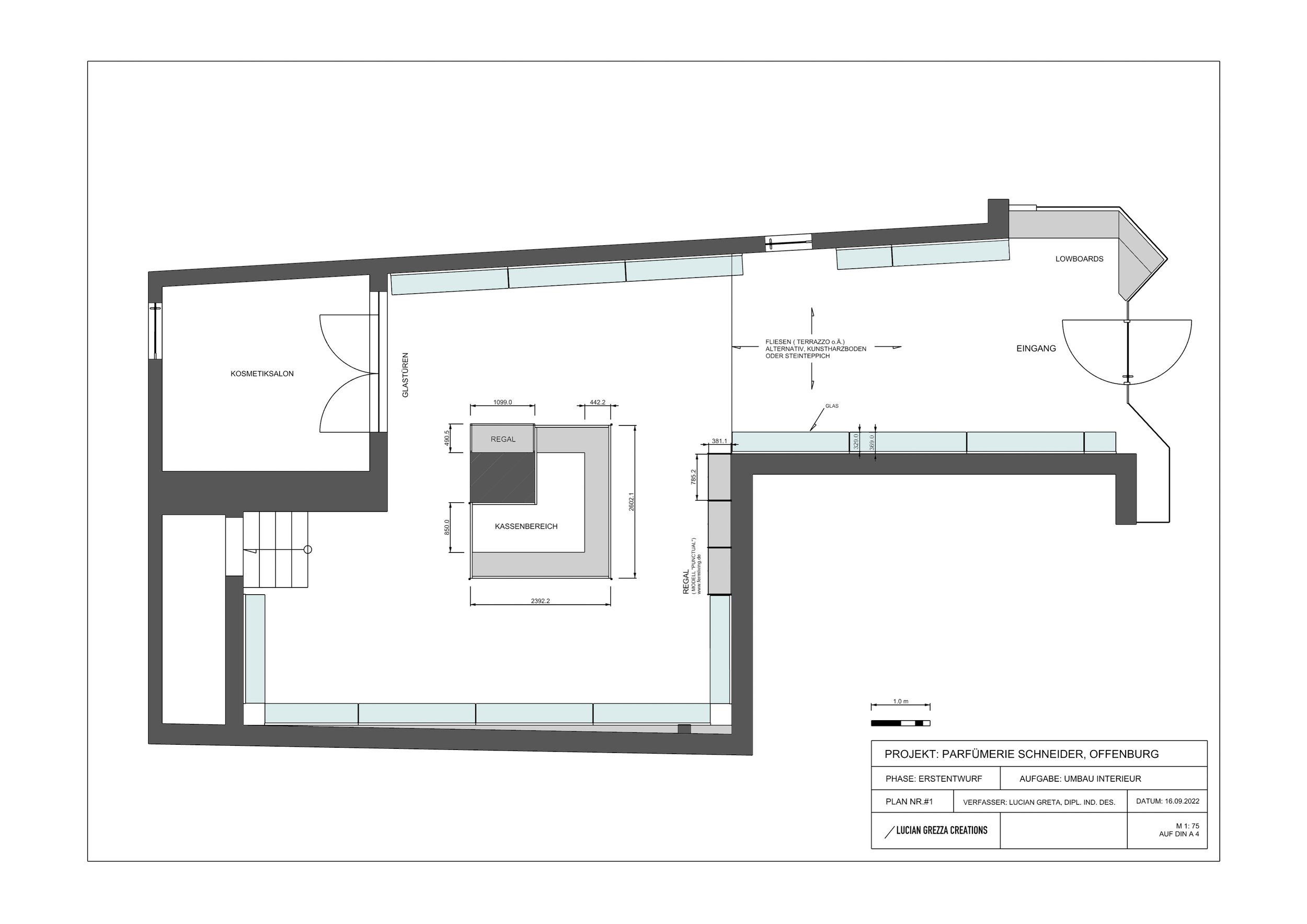
Erstentwurf für Interior-design einer neuen Parfümerie. Aufgaben: Grundrissplanung, Interior-Styling, Möbeldesign, 3D-Visualisierung, Projektleitung-und Betreuung.

Auftraggeber: SCHNEIDER KG, St.Blasien.
Projektjahr: 2022

BE
First concept of a new interior design for a perfume store. Tasks: interior design & styling, furniture design, 3D-visualizations, project coordination.

Customer: SCHNEIDER KG, St. Blasien, Germany.
Year of Project: 2022

Parf OG 1-15.jpg
Parf OG 1-16.jpg
Parf OG 1-11.jpg
Parf OG 1-10-2.jpg
Parf OG 1-14 Kopie.jpg
Parf OG 1-12.jpg
Plan 2.jpg